Short Lane, Radstock, BA3
£650,000
5
32 Photos
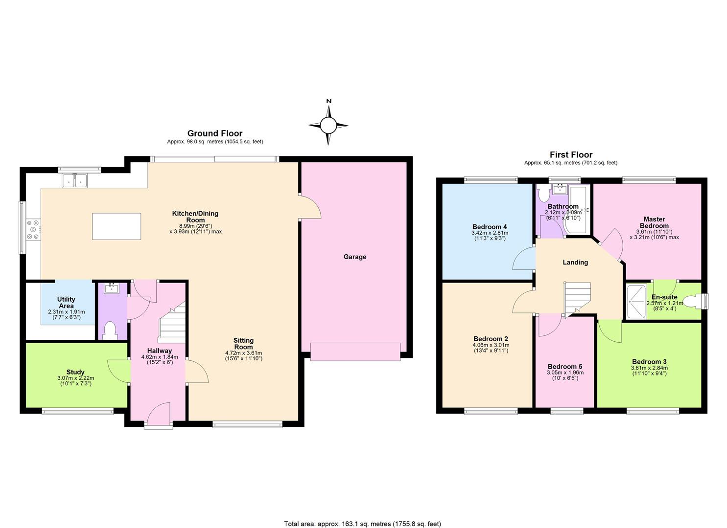
This immaculate five-bedroom semi-detached house is offered for sale with no onward chain in Litton on the edge of the Chew Valley. Situated in the heart of the village, the property enjoys far-reaching views over surrounding farmland. Extensively extended and thoroughly renovated, the property provides a generous 1,755 sqft of flexible accommodation, ideal for families seeking open-plan living with modern conveniences. The ground floor features a spacious open-plan reception area flowing into a contemporary kitchen - diner with an island to seat 4, 2 full sized ovens, a double belfast sink and a defined dining area. Ample natural light and direct access to the garden through the 5 meter sliding doors create a practical setting for everyday living and entertaining. A separate utility area enhances functionality, while a ground floor study offers a dedicated workspace. There is also a well-appointed downstairs WC and internal access to the garage. Upstairs, there are four double bedrooms and one single bedroom. The principal bedroom benefits from an en-suite, offering additional privacy and comfort. Externally, the property provides plenty of parking together with a generous sized garage and side access to the rear garden. The low maintenance garden enjoys large patio areas and stunning views across the fields to the rear.
Summary
This immaculate five-bedroom semi-detached house is offered for sale with no onward chain in Litton on the edge of the Chew Valley. Situated in the heart of the village, the property enjoys far-reaching views over surrounding farmland. Extensively extended and thoroughly renovated, the property provides a generous 1,755 sqft of flexible accommodation, ideal for families seeking open-plan living with modern conveniences. The ground floor features a spacious open-plan reception area flowing into a contemporary kitchen - diner with an island to seat 4, 2 full sized ovens, a double belfast sink and a defined dining area. Ample natural light and direct access to the garden through the 5 meter sliding doors create a practical setting for everyday living and entertaining. A separate utility area enhances functionality, while a ground floor study offers a dedicated workspace. There is also a well-appointed downstairs WC and internal access to the garage. Upstairs, there are four double bedrooms and one single bedroom. The principal bedroom benefits from an en-suite, offering additional privacy and comfort. Externally, the property provides plenty of parking together with a generous sized garage and side access to the rear garden. The low maintenance garden enjoys large patio areas and stunning views across the fields to the rear.Key features
- Five bedrooms including Principal En-suite
- Extensively Extended and Renovated Home
- Stunning open-plan Kitchen / Diner with BiFold Doors
- Ground Floor Study Home Office
- Large Driveway and Garage
- Landscaped Garden with Countryside Outlook
- Excellent Local Schools and Amenities
- No Onward Chain
- EPC Rating B Energy Efficient
Full Description
Entrance HallSitting Room (4.72 x 3.61 (15'5" x 11'10"))
Open Plan Kitchen / Diner (8.99 x 3.93 (29'5" x 12'10"))
Utility Room (2.31 x 1.91 (7'6" x 6'3"))
Office / Playroom (3.07 x 2.22 (10'0" x 7'3"))
Ground Floor WC
First Floor Landing
Bedroom One (3.61 x 3.21 (11'10" x 10'6"))
En-Suite (2.57 x 1.21 (8'5" x 3'11"))
Bedroom Two (4.06 x 3.01 (13'3" x 9'10"))
Bedroom Three (3.61 x 2.84 (11'10" x 9'3"))
Bedroom Four (3.42 x 2.81 (11'2" x 9'2"))
Bedroom Five (3.05 x 1.96 (10'0" x 6'5"))
Main Bathroom (2.12 x 2.09 (6'11" x 6'10"))
Outside
Garage (6.3 x 2.98)
Drone Photos
Farmland View
Litton is an extremely sought after village in an Area of Outstanding Natural Beauty and benefits from an award wining boutique pub, 13th century church, busy village hall and miles of excellent walks including the footpaths around Litton reservoirs and the nearby Mendips. Litton is also very commutable being 15 miles from Bristol, 14 Miles from Bath and 8 miles from Wells. Bristol Airport is also 12 miles away.
The village of Chewton Mendip lies a short distance away and has bus routes to Bristol and Wells. Chewton Mendip also offers a pre school and a primary school which acts as a feeder school to nearby Wells Cathedral and The Blue School Secondary Schools.
Viewing/Disclaimer
Please contact us on 0117 904 9000 if you wish to arrange a viewing appointment for this property or require further information.Energy Performance Certificate
Click here to view the Energy Efficiency Rating and Environmental Impact Rating for this property.
Eveleighs Estate Agents - BS31 endeavour to maintain accurate depictions of properties in Virtual Tours, Floor Plans and descriptions, however, these are intended only as a guide and purchasers must satisfy themselves by personal inspection.

