Newland Road, Bristol, BS13
£240,000
2
10 Photos
Presenting a charming end of terrace house, listed for sale. This property is in a neutrally decorated condition throughout, allowing potential buyers to easily envision their own style within the home. The property is spread across two floors and features a collection of cosy and inviting rooms.The ground floor comprises of a separate reception room, a perfect space for relaxing or entertaining. The room is complemented by a cute wood burning stove, adding a unique feature to the property. Also on this floor, you'll discover a kitchen equipped with built-in pantry also housing the combi boiler and providing direct access to the garden, ideal for those who enjoy al fresco dining or gardening.On the first floor, there are two double bedrooms. Each room provides ample space for furniture and storage, promoting comfortable living. From the first floor, residents will enjoy a view to the suspension bridge, a charming and unique feature of this property's location.The house also includes a bathroom fitted with a bath and an over-shower.The property has an EPC rating of 'D' and falls under the 'B' council tax band. Noteworthy features of this property include a driveway, offering off-road parking, and it is conveniently located with public transport links nearby.This home is ideally suited for first-time buyers looking to step onto the property ladder. With its blend of comfort, charm, and convenient location, this end of terrace house offers a fantastic opportunity for new homeowners.Please note this property is a Laing Easi Form Construction and does require removal / repair of the decking area in the rear garden.
Summary
Presenting a charming end of terrace house, listed for sale. This property is in a neutrally decorated condition throughout, allowing potential buyers to easily envision their own style within the home. The property is spread across two floors and features a collection of cosy and inviting rooms.The ground floor comprises of a separate reception room, a perfect space for relaxing or entertaining. The room is complemented by a cute wood burning stove, adding a unique feature to the property. Also on this floor, you'll discover a kitchen equipped with built-in pantry also housing the combi boiler and providing direct access to the garden, ideal for those who enjoy al fresco dining or gardening.On the first floor, there are two double bedrooms. Each room provides ample space for furniture and storage, promoting comfortable living. From the first floor, residents will enjoy a view to the suspension bridge, a charming and unique feature of this property's location.The house also includes a bathroom fitted with a bath and an over-shower.The property has an EPC rating of 'D' and falls under the 'B' council tax band. Noteworthy features of this property include a driveway, offering off-road parking, and it is conveniently located with public transport links nearby.This home is ideally suited for first-time buyers looking to step onto the property ladder. With its blend of comfort, charm, and convenient location, this end of terrace house offers a fantastic opportunity for new homeowners.Please note this property is a Laing Easi Form Construction and does require removal / repair of the decking area in the rear garden.Key features
- Two Double Bedrooms
- End Terraced Home
- Neutrally decorated Throughout
- Driveway with Off Street Parking
- Kitchen With Garden Access
- Homely Sitting Room with Feature Fireplace
- Bathroom with Shower over the Bath
- Gas Central Heating
- Nearby Transport Links
Full Description
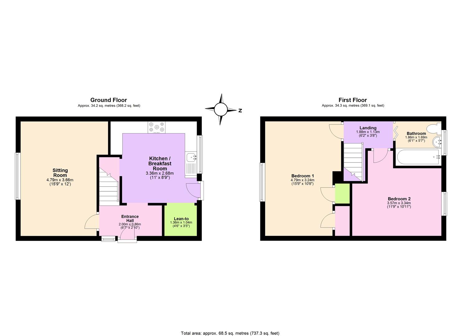
Lean To EntranceHallway
Sitting Room (4.79 x 3.66 (15'8" x 12'0"))
Kitchen (3.36 x 2.68 (11'0" x 8'9"))
First Floor Landing
Bedroom One (4.79 x 3.24 (15'8" x 10'7"))
Bedroom Two (3.57 x 3.34 (11'8" x 10'11"))
Bathroom (1.86 x 1.69 (6'1" x 5'6"))
Outside
Viewing/Disclaimer
Please contact us on 0117 904 9000 if you wish to arrange a viewing appointment for this property or require further information.Energy Performance Certificate
Click here to view the Energy Efficiency Rating and Environmental Impact Rating for this property.
Eveleighs Estate Agents - BS31 endeavour to maintain accurate depictions of properties in Virtual Tours, Floor Plans and descriptions, however, these are intended only as a guide and purchasers must satisfy themselves by personal inspection.

