Bridge Close, Bristol, BS14
£525,000
4
21 Photos
Presenting an immaculate, detached home for sale, situated in a highly sought-after location. The property is surrounded by green spaces and walking routes, and conveniently located near schools. This home offers an outstanding opportunity for families seeking a superior, comfortable and stylish lifestyle.The interior of the property is truly impressive, boasting four bedrooms, three reception rooms, and a high-spec kitchen. The master bedroom is a spacious double, featuring an en-suite and built-in wardrobes. The second bedroom is also a double, while the third and fourth bedrooms are single rooms, each offering ample space.The heart of the home is undoubtedly the stylish sitting room, featuring a warm and inviting fireplace. This space effortlessly interconnects with the separate dining room, perfect for hosting dinner parties and family gatherings. The kitchen is fitted with a built-in oven, hob, and wine fridge, alongside and a kitchen island incorporating breakfast bar with granite countertops. French doors lead you to the dwarf wall upvc conservatory overlooking the manicured rear garden, providing a delightful setting for relaxation or entertainment.The property comes with the added benefit of a ground floor WC, single garage and driveway for two vehicles. The EPC rating is a 'C' and it falls under council tax band 'E'. In a quiet, sac location with manicured gardens, this property is indeed a gem in its locale. With its high specification and unique features, this home is ready to provide a luxurious living experience.
Summary
Presenting an immaculate, detached home for sale, situated in a highly sought-after location. The property is surrounded by green spaces and walking routes, and conveniently located near schools. This home offers an outstanding opportunity for families seeking a superior, comfortable and stylish lifestyle.The interior of the property is truly impressive, boasting four bedrooms, three reception rooms, and a high-spec kitchen. The master bedroom is a spacious double, featuring an en-suite and built-in wardrobes. The second bedroom is also a double, while the third and fourth bedrooms are single rooms, each offering ample space.The heart of the home is undoubtedly the stylish sitting room, featuring a warm and inviting fireplace. This space effortlessly interconnects with the separate dining room, perfect for hosting dinner parties and family gatherings. The kitchen is fitted with a built-in oven, hob, and wine fridge, alongside and a kitchen island incorporating breakfast bar with granite countertops. French doors lead you to the dwarf wall upvc conservatory overlooking the manicured rear garden, providing a delightful setting for relaxation or entertainment.The property comes with the added benefit of a ground floor WC, single garage and driveway for two vehicles. The EPC rating is a 'C' and it falls under council tax band 'E'. In a quiet, sac location with manicured gardens, this property is indeed a gem in its locale. With its high specification and unique features, this home is ready to provide a luxurious living experience.Key features
- Detached Family Home
- Four Bedrooms
- Master En-Suite
- Two Separate Reception Rooms Plus Conservatory
- High Specification Kitchen / Breakfast Room
- Ground Floor WC
- Double Glazed & Gas Centrally Heated
- Well Manicured Gardens
- Garage & Driveway
- Cul De Sac Location
Full Description
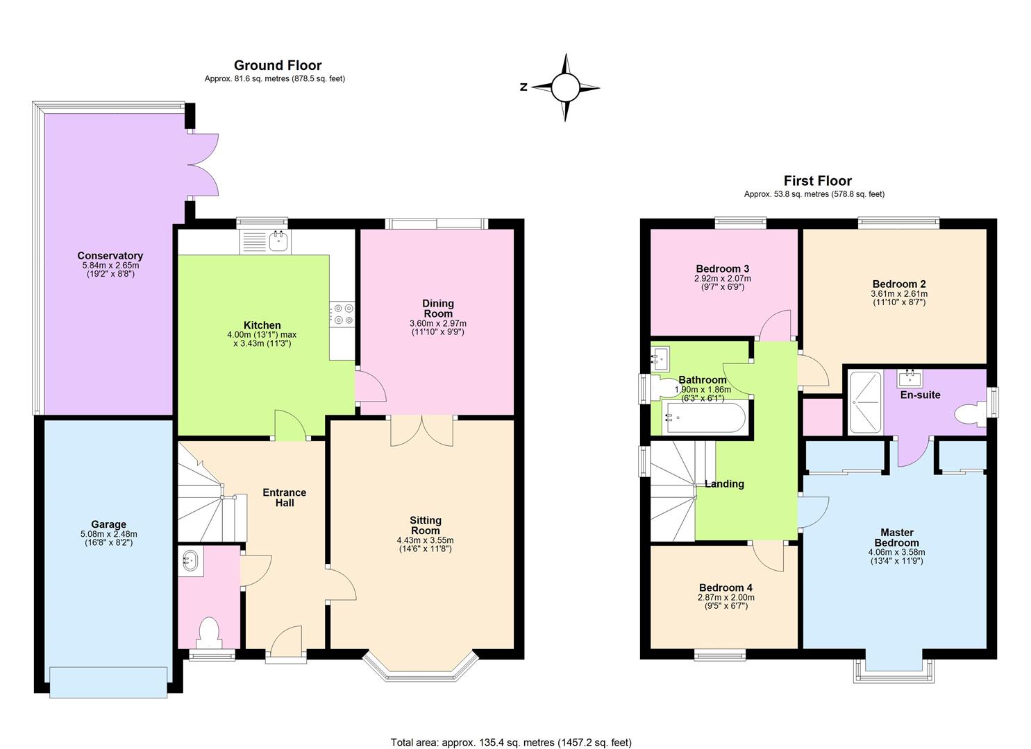
Entrance HallSitting Room (4.43 x 3.55 (14'6" x 11'7"))
Dining Room (3.60 x 2.97 (11'9" x 9'8"))
Kitchen / Breakfast (4.00 x 3.43 (13'1" x 11'3"))
Conservatory (5.84 x 2.65 (19'1" x 8'8"))
Ground Floor WC
First Floor Landing
Bedroom One (4.06 x 3.58 (13'3" x 11'8"))
En-Suite
Bedroom Two (3.61 x 2.61 (11'10" x 8'6"))
Bedroom Three (2.92 x 2.07 (9'6" x 6'9"))
Bedroom Four (2.87 x 2.00 (9'4" x 6'6"))
Bathroom (1.90 x 1.86 (6'2" x 6'1"))
Outside
Garage (5.08 x 2.48 (16'7" x 8'1"))
Viewing/Disclaimer
Please contact us on 0117 904 9000 if you wish to arrange a viewing appointment for this property or require further information.Energy Performance Certificate
Click here to view the Energy Efficiency Rating and Environmental Impact Rating for this property.
Eveleighs Estate Agents - BS31 endeavour to maintain accurate depictions of properties in Virtual Tours, Floor Plans and descriptions, however, these are intended only as a guide and purchasers must satisfy themselves by personal inspection.

