Wells Road, Bristol, BS14
£775,000
4
30 Photos
This immaculate detached, extended home with four double bedrooms is offered **for sale** in a sought-after part of Bristol, providing well-balanced accommodation ideal for families. Dating from the 1920s, the property retains character features while offering modern comforts.The ground floor includes a formal sitting room with bay window and feature fireplace, plus a separate lounge and dining room, offering flexible reception space. There is also an office/playroom, providing a useful area for home working or children. The stunning kitchen features marble worktops there is also a practical boot room and a ground-floor utility/shower room.Upstairs, there are four generous double bedrooms, offering comfortable accommodation for family living. The home has an EPC rating of D and falls within Council Tax Band E.Externally, the property benefits from a large garden, a driveway with parking for up to six vehicles and a tandem garage, providing extensive parking, storage options and further scope to convert (STPP).Located in south Bristol, the house is well placed for nearby parks such as Mowbray Road. Local schools in the area serve families at primary and secondary level. Nearby shops and cafés.Public transport links are available via nearby bus routes along Wells Road, providing regular services into Bristol city centre, Temple Meads and surrounding areas. Bristol Temple Meads station offers rail connections to Bath in around 15 minutes and to London Paddington in approximately 1 hour 40 minutes.
Summary
This immaculate detached, extended home with four double bedrooms is offered **for sale** in a sought-after part of Bristol, providing well-balanced accommodation ideal for families. Dating from the 1920s, the property retains character features while offering modern comforts.The ground floor includes a formal sitting room with bay window and feature fireplace, plus a separate lounge and dining room, offering flexible reception space. There is also an office/playroom, providing a useful area for home working or children. The stunning kitchen features marble worktops there is also a practical boot room and a ground-floor utility/shower room.Upstairs, there are four generous double bedrooms, offering comfortable accommodation for family living. The home has an EPC rating of D and falls within Council Tax Band E.Externally, the property benefits from a large garden, a driveway with parking for up to six vehicles and a tandem garage, providing extensive parking, storage options and further scope to convert (STPP).Located in south Bristol, the house is well placed for nearby parks such as Mowbray Road. Local schools in the area serve families at primary and secondary level. Nearby shops and cafés.Public transport links are available via nearby bus routes along Wells Road, providing regular services into Bristol city centre, Temple Meads and surrounding areas. Bristol Temple Meads station offers rail connections to Bath in around 15 minutes and to London Paddington in approximately 1 hour 40 minutes.Key features
- Imposing 1920s Detached Family Home
- Four Double Bedrooms
- Formal Sitting Room
- Separate Lounge / Dining Room
- Additional Study / Playroom
- Boot Room Plus Utility / Ground Floor Shower Room
- Driveway for up to Six Vehicles
- Attached Tandem Garage
- Generous Rear Garden
- Beautifully Presented Throughout
Full Description
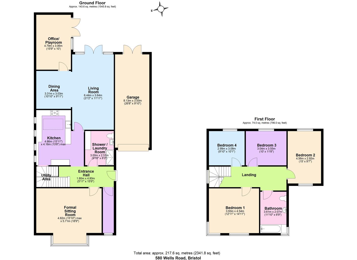
Entrance Hall (4.80 x 1.80 (15'8" x 5'10"))Boot Room (3.93 x 0.96 (12'10" x 3'1"))
Formal Sitting Room (5.71 x 4.82 max (18'8" x 15'9" max))
Utility / Shower Room (3.00 x 2.51 (9'10" x 8'2"))
Kitchen (4.86 x 4.16 (15'11" x 13'7"))
Living Area (6.44 x 3.64 (21'1" x 11'11"))
Dining Area (3.31 x 3.03 (10'10" x 9'11"))
Office / Playroom (4.79 x 3.06 (15'8" x 10'0"))
First Floor Landing
Bedroom One (4.54 x 3.93 (14'10" x 12'10"))
Bedroom Two (4.56 x 2.92 (14'11" x 9'6"))
Bedroom Three (3.55 x 3.04 (11'7" x 9'11"))
Bedroom Four (3.08 x 2.99 (10'1" x 9'9"))
Bathroom (3.61 x 2.07 (11'10" x 6'9"))
Outside
Garage
Viewing/Disclaimer
Please contact us on 0117 904 9000 if you wish to arrange a viewing appointment for this property or require further information.Energy Performance Certificate
Click here to view the Energy Efficiency Rating and Environmental Impact Rating for this property.
Eveleighs Estate Agents - BS31 endeavour to maintain accurate depictions of properties in Virtual Tours, Floor Plans and descriptions, however, these are intended only as a guide and purchasers must satisfy themselves by personal inspection.

