Golf Club Lane, Bristol, BS31
OIRO £520,000
2
20 Photos
** No onward sales chain** Nestled in the charming locale of Golf Club Lane, Saltford, this delightful detached bungalow presents a rare opportunity for discerning buyers. As you enter, you are welcomed by a spacious hallway that leads to a bright and airy lounge/dining room, perfect for entertaining guests or enjoying quiet evenings at home. The kitchen is functional and well-equipped, while the adjoining conservatory offers a lovely spot to relax and soak in the views of the mature rear garden.This bungalow features two inviting bedrooms, providing ample space for rest and relaxation. The bathroom is conveniently located, and an additional loft room with a w/c adds versatility to the living space, making it suitable for various uses, whether as a study, guest room, or hobby area.Set on a level corner plot, the property benefits from ample off-street parking and a single garage, ensuring that your vehicles are secure and easily accessible. The double glazing and gas central heating contribute to a warm and inviting atmosphere throughout the home. With its proximity to the esteemed Saltford Golf Club, this bungalow is perfectly positioned for golf lovers and those who appreciate the beauty of the surrounding area.An early viewing is highly recommended to fully appreciate the charm and potential of this lovely bungalow. Do not miss the chance to make this delightful property your new home.
Summary
** No onward sales chain** Nestled in the charming locale of Golf Club Lane, Saltford, this delightful detached bungalow presents a rare opportunity for discerning buyers. As you enter, you are welcomed by a spacious hallway that leads to a bright and airy lounge/dining room, perfect for entertaining guests or enjoying quiet evenings at home. The kitchen is functional and well-equipped, while the adjoining conservatory offers a lovely spot to relax and soak in the views of the mature rear garden.This bungalow features two inviting bedrooms, providing ample space for rest and relaxation. The bathroom is conveniently located, and an additional loft room with a w/c adds versatility to the living space, making it suitable for various uses, whether as a study, guest room, or hobby area.Set on a level corner plot, the property benefits from ample off-street parking and a single garage, ensuring that your vehicles are secure and easily accessible. The double glazing and gas central heating contribute to a warm and inviting atmosphere throughout the home. With its proximity to the esteemed Saltford Golf Club, this bungalow is perfectly positioned for golf lovers and those who appreciate the beauty of the surrounding area.An early viewing is highly recommended to fully appreciate the charm and potential of this lovely bungalow. Do not miss the chance to make this delightful property your new home.Key features
- Close to Saltford golf club
- UPVC double glazing
- Gas fired central heating
- Driveway and garage
- Enclosed rear garden
- No onward sales chain
Full Description
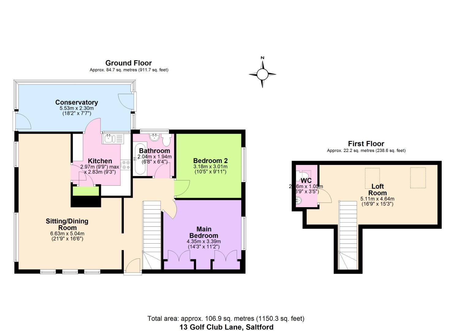
Entrance via uPVC obscured front door intoHallway
Stairs rising to first floor landing, 2 double radiators, wood effect flooring, opening to
L-Shaped Dining/Sitting Room (6.63 x 5.04 (21'9" x 16'6"))
uPVC double glazed windows to front aspect, 3 small uPVC double glazed windows to side aspect, 2 double radiators, freestanding woodburning stove, door to
Kitchen (2.97 x 2.83 (9'8" x 9'3"))
uPVC double glazed window to side aspect, uPVC double glazed door opening to conservatory, a range of wall and floor units with worksurface over, sink drainer with mixer taps over, space for cooker with extractor over, breakfast bar area, integrated under unit fridge.
Conservatory (5.53 x 2.30 (18'1" x 7'6"))
uPVC double glazed obscured glass doors to front and rear aspect, uPVC double glazed windows, polycarbonate roof, space and plumbing for washing machine, space for freestanding fridge freezer, double radiator.
Bathroom (2.04 x 1.94 (6'8" x 6'4"))
Obscured uPVC double glazed window to side aspect, paneled bath with shower attachment over, pedestal wash hand basin with taps over, close coupled w/c, heated towel rail, spot lights.
Main Bedroom (4.35 x 3.39 (14'3" x 11'1"))
uPVC double glazed window to rear aspect, single radiator, fitted wardrobes.
Bedroom Two (3.18 x 3.01 (10'5" x 9'10"))
uPVC double glazed window to rear aspect, single radiator.
Loft Room (5.11 x 4.64 (16'9" x 15'2"))
2 Velux windows to side aspect, double radiator, eaves storage space, door to
W/C (2.06 x 105 (6'9" x 344'5"))
Velux window to side aspect, close coupled w/c, wash hand basin.
Outside
A block paved driveway provides off street parking for several vehicles and access to the garage with metal up and over door. The rear garden has a decking area ideal for garden furniture, the remainder is laid mainly to lawn and is enclosed by wooden fencing.
Directions
Sat Nav BS31 3AA
Viewing/Disclaimer
Please contact us on 0117 904 9000 if you wish to arrange a viewing appointment for this property or require further information.Energy Performance Certificate
Click here to view the Energy Efficiency Rating and Environmental Impact Rating for this property.
Eveleighs Estate Agents - BS31 endeavour to maintain accurate depictions of properties in Virtual Tours, Floor Plans and descriptions, however, these are intended only as a guide and purchasers must satisfy themselves by personal inspection.

