Heathfield Close, Bristol, BS31
£475,000
3
25 Photos
Positioned on Heathfield Close, Keynsham, Bristol, this charming three-bedroom semi-detached house offers a perfect blend of comfort and convenience. Set on a generous corner plot, the property boasts a well-maintained exterior and is immaculately presented throughout, making it an ideal home for families or professionals alike.Upon entering, you will find a welcoming reception room that provides a warm and inviting space for relaxation and entertaining. The heart of the home is undoubtedly the recently refitted kitchen, which combines modern design with functionality, ensuring that cooking and dining experiences are both enjoyable and efficient. The property features three spacious bedrooms, each offering ample natural light and storage, making them perfect for restful nights. The well-appointed bathroom caters to the needs of the household, providing a tranquil space for personal care.Outside, the low-maintenance enclosed rear garden is a delightful retreat, perfect for enjoying sunny days or hosting gatherings with friends and family. Additionally, the property benefits from a driveway and garage, providing off street parking, which is a valuable asset in this sought-after area.Conveniently located close to local shops and amenities, this home offers easy access to everything you need for daily living. With gas-fired central heating and uPVC double glazing, comfort and energy efficiency are assured throughout the year.This semi-detached house in Keynsham is a wonderful opportunity for those seeking a well-presented home in a friendly community. Do not miss the chance to make this delightful property your own.
Summary
Positioned on Heathfield Close, Keynsham, Bristol, this charming three-bedroom semi-detached house offers a perfect blend of comfort and convenience. Set on a generous corner plot, the property boasts a well-maintained exterior and is immaculately presented throughout, making it an ideal home for families or professionals alike.Upon entering, you will find a welcoming reception room that provides a warm and inviting space for relaxation and entertaining. The heart of the home is undoubtedly the recently refitted kitchen, which combines modern design with functionality, ensuring that cooking and dining experiences are both enjoyable and efficient. The property features three spacious bedrooms, each offering ample natural light and storage, making them perfect for restful nights. The well-appointed bathroom caters to the needs of the household, providing a tranquil space for personal care.Outside, the low-maintenance enclosed rear garden is a delightful retreat, perfect for enjoying sunny days or hosting gatherings with friends and family. Additionally, the property benefits from a driveway and garage, providing off street parking, which is a valuable asset in this sought-after area.Conveniently located close to local shops and amenities, this home offers easy access to everything you need for daily living. With gas-fired central heating and uPVC double glazing, comfort and energy efficiency are assured throughout the year.This semi-detached house in Keynsham is a wonderful opportunity for those seeking a well-presented home in a friendly community. Do not miss the chance to make this delightful property your own.Key features
- Corner plot location offering room for an extension (subject to necessary planning consents)
- UPVC double glazing
- Gas fired central heating
- Close to local amenities
- Driveway and garage
Full Description
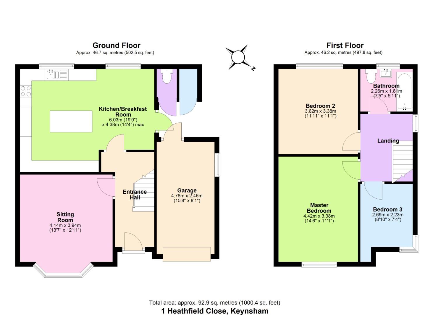
Entrance via composite double glazed door intoHallway
Single radiator, stairs rising to first floor, understairs storage cupboard, doors to
Sitting Room (4.14 x 3.94 (13'6" x 12'11"))
uPVC double glazed feature bay window with fitted shutters to front aspect, double radiator.
Kitchen/Dining Room (6.03 x 4.38 (19'9" x 14'4"))
Two uPVC double glazed windows to rear aspect, a recently refitted kitchen comprising a range of wall and floor units with worksurface over, sink drainer unit with HOT TAP providing both boiling and filtered water, integrated AEG induction hob with fitted extractor over, Neff Slide & Hide oven with microwave over, integrated dishwasher, washing machine and tumble drier, space and plumbing for American style fridge freezer, under unit lighting, island with storage beneath, worksurface over, area for barstools and fitted wine cooler. Space for dining table, double radiator, uPVC obscured double glazed door to side aspect, spotlights, wood effect flooring.
First Floor Landing
uPVC double glazed obscured window to side aspect, access to loft space, doors to
Master Bedroom (4.42 x 3.38 (14'6" x 11'1"))
uPVC double glazed window to front aspect with fitted shutters, single radiator.
Bedroom Two (3.62 x 3.38 (11'10" x 11'1"))
uPVC double glazed window to rear aspect, single radiator, fitted storage cupboards.
Bedroom Three (2.69 x 2.23 (8'9" x 7'3"))
uPVC double glazed corner window to side and front aspect with fitted shutters, single radiator.
Family Bathroom (2.26 x 1.81 (7'4" x 5'11"))
Obscured uPVC double glazed window to rear aspect, p-shaped paneled bath with rainfall shower attachment over, close coupled w/c, wash hand basin with mixer tap and storage beneath, heated towel rail, spot lights.
Outside
The front of the property has a driveway providing off street parking for several vehicles and access to the garage, the remainder is laid to gravel and enclosed by a stone wall. A wooden pedestrian gate gives access into the rear garden. The rear garden is situated on a corner plot giving potential for an extension (with necessary planning consents). A patio area is immediately adjoining the property ideal for garden furniture, door to outside w/c. additional storage space, 2 further garden shed which will be included in the sale. From patio a step up leads to an area laid mainly to artificial lawn for ease of maintenance, the rear garden is fully enclosed by wooden fencing.
Garage
Metal up and over door, pedestrian door to rear garden, power and light is connected. The combination boiler is also located inside the garage.
Outside W/C
Close coupled w/c, light.
Directions
Sat Nav BS31 2HJ
Viewing/Disclaimer
Please contact us on 0117 904 9000 if you wish to arrange a viewing appointment for this property or require further information.Energy Performance Certificate
Click here to view the Energy Efficiency Rating and Environmental Impact Rating for this property.
Eveleighs Estate Agents - BS31 endeavour to maintain accurate depictions of properties in Virtual Tours, Floor Plans and descriptions, however, these are intended only as a guide and purchasers must satisfy themselves by personal inspection.

