Winchester Road, Bristol, BS4
£460,000
3
15 Photos
Situated in the heart of Brislington, and offered for sale with no onward chain, this period terrace retains all those important features, high ceilings, generously sized rooms and plenty of character. The accommodation briefly comprises a large entrance vestibule opening to a central hallway with stunning original tiled flooring and stained glass, a bayed lounge situated to the front of the property, whilst to the rear is a large, full width dining/family room with the fitted kitchen off. A turned staircase leads to the first floor with a large master bedroom, two further good sized double bedrooms and a shower room. Outside there's a low maintenance enclosed garden with shed. Perfectly located for Holymead Juniors and with all the independent shops and cafes on Sandy Park Road at the end of the street, this substantial home has a lot to offer those seeking space, character and a home in the heart of the community, which they can update and improve further over time.
Summary
Situated in the heart of Brislington, and offered for sale with no onward chain, this period terrace retains all those important features, high ceilings, generously sized rooms and plenty of character. The accommodation briefly comprises a large entrance vestibule opening to a central hallway with stunning original tiled flooring and stained glass, a bayed lounge situated to the front of the property, whilst to the rear is a large, full width dining/family room with the fitted kitchen off. A turned staircase leads to the first floor with a large master bedroom, two further good sized double bedrooms and a shower room. Outside there's a low maintenance enclosed garden with shed. Perfectly located for Holymead Juniors and with all the independent shops and cafes on Sandy Park Road at the end of the street, this substantial home has a lot to offer those seeking space, character and a home in the heart of the community, which they can update and improve further over time.Key features
- Substantial Period Terrace
- Three Double Bedrooms
- Original Tiled Hallway
- Bayed Sitting Room
- Large Living/Dining Room
- Fitted Kitchen
- Downstairs WC and First Floor Shower Room
- Enclosed Garden
- Gas CH & Double Glazing
- No Onward Chain
Full Description
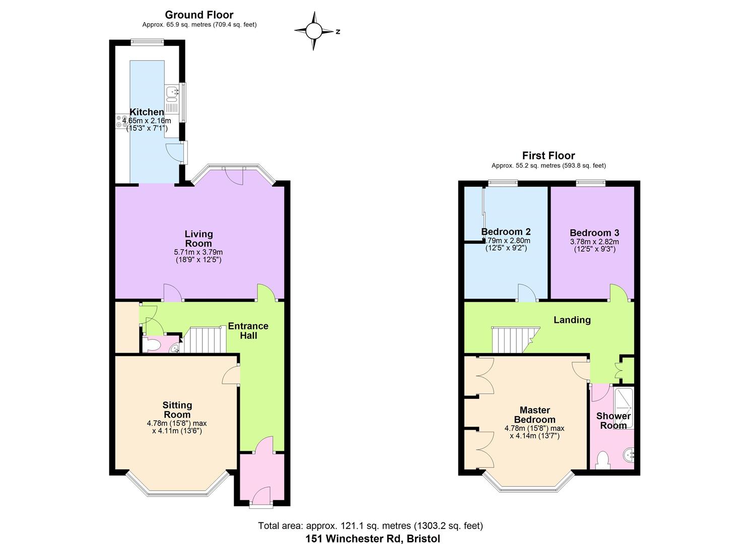
Entrance VestibuleHallway
W.C
Sitting Room (4.78m max x 4.11m (15'8" max x 13'5"))
Living/Dining Room (5.72m x 3.78m (18'9 x 12'5))
Kitchen (4.65m x 2.16m (15'3 x 7'1))
Landing
Master Bedroom (4.78m x 4.14m (15'8 x 13'7))
Bedroom Two (3.78m x 2.79m (12'5 x 9'2))
Bedroom Three (3.78m x 2.82m (12'5 x 9'3))
Shower Room
Rear Garden
General
Please note, the land in this title is subject to a perpetual yearly rentcharge of £3.80
Viewing/Disclaimer
Please contact us on 0117 904 9000 if you wish to arrange a viewing appointment for this property or require further information.Energy Performance Certificate
Click here to view the Energy Efficiency Rating and Environmental Impact Rating for this property.
Eveleighs Estate Agents - BS31 endeavour to maintain accurate depictions of properties in Virtual Tours, Floor Plans and descriptions, however, these are intended only as a guide and purchasers must satisfy themselves by personal inspection.

